Site at Bishopscourt, Williamstown, Waterford

  • Unconditional Online Auction Sale
  • AMV : €250000

Shovel ready site with Full Planning Permission for Four No. Five bedroom split level detached homes

Description

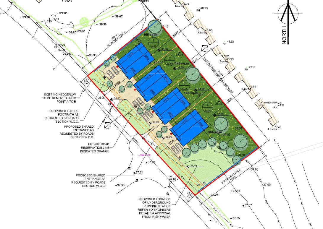
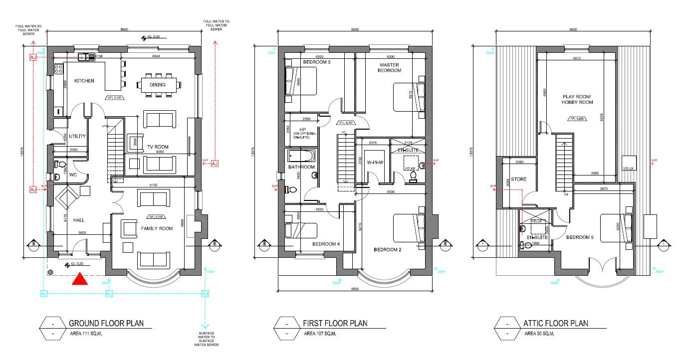
Shovel ready site with Full Planning Permission for Four No. Five bedroom split level detached homes. A grant of full planning permission received on the 22-8-19 for this development of four substantial detached family homes. The site extends to c. 2,622 sq.m / 0.65 Acres with access provided to mains services. Each home extends to c. 248 sq.m / c. 2,669 sq.ft. and comprises of entrance hall, sitting room, open plan kitchen /dining and living room, utility room, WC, four bedrooms and two bathrooms at first floor level, with fifth bedroom, play room, bathroom and store room at second floor level. Plans and details available upon request from DNG Reid & Coppinger Auctioneers. The site is located just off the prestigious Williamstown Road at Bishopscourt, c. 4km from Waterford City and c.1.5km from Tesco Ardkeen and University Hospital Waterford. Plans and details available upon request from DNG Reid & Coppinger Auctioneers.

Loading the bidding panel...

Office Contact

Thomas Reid
+353868038888

Vendors Solicitor

Paul O'Brien
061315100

Agreement Documents

Additional Documents

Related Documents

Make an Enquiry

Submit an enquiry and someone will be in contact shortly.

 
*  
*  
*
*
*

Share